Browse Homes

Leave a Message

Thank you for your message. We will be in touch with you shortly.

Browse Homes
Background Image

A Rare Architectural Gem in the Heart of the Arts District

919 Santa Fe Drive
November 5, 2025

Step into 919 Santa Fe Drive—a property that redefines what it means to live and work creatively in Denver. Designed for those who blur the line between artistry and lifestyle, this architectural showpiece delivers both luxurious comfort and functional workspace within one extraordinary address.

The digital furnishings shown in listing photos are for inspiration only. The property is currently vacant and ready for your own creative touch.

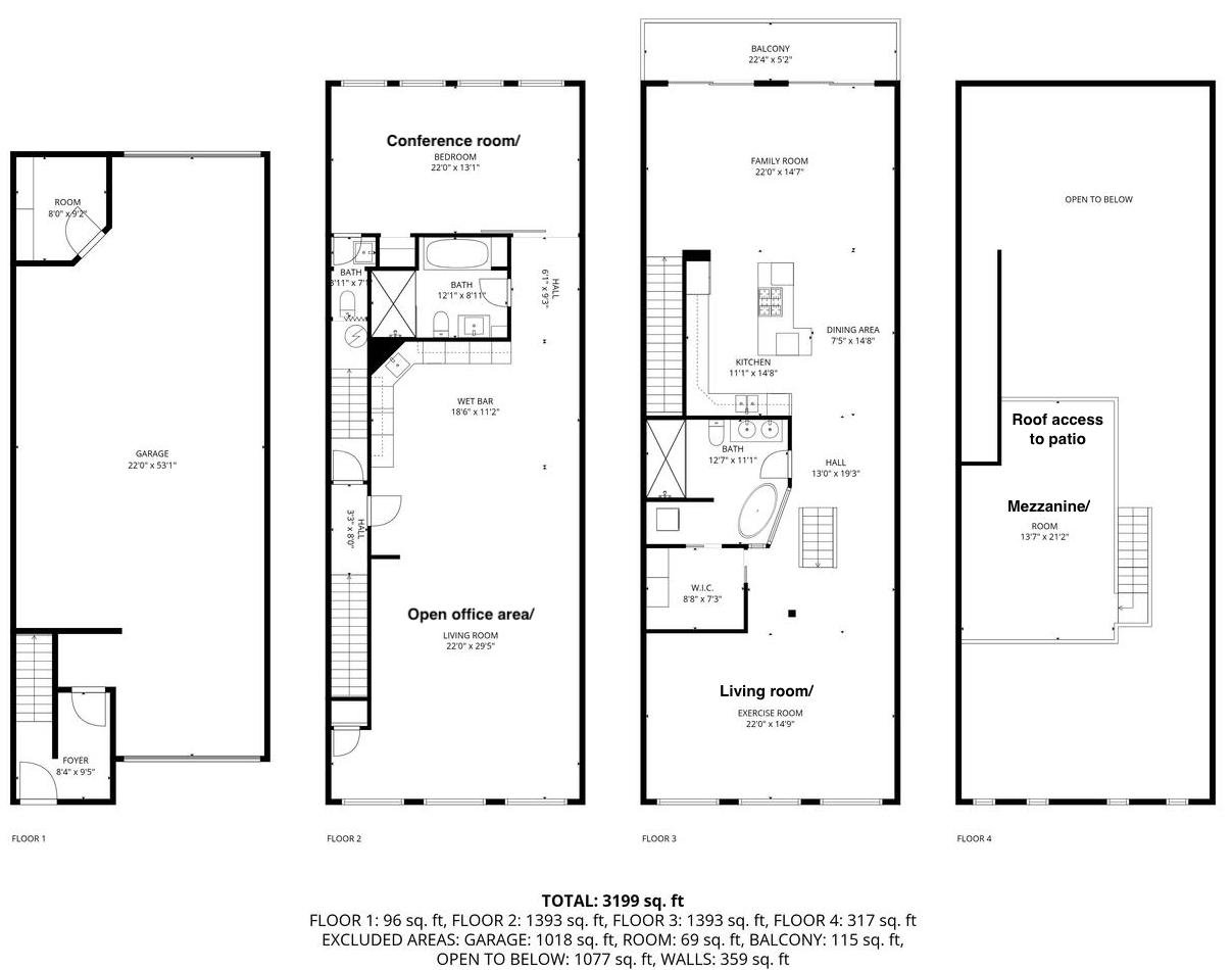
The upper level unfolds across 1,928 square feet of refined living space, where soaring arched ceilings, abundant natural light, and sophisticated finishes create an atmosphere of warmth and inspiration. A chef’s kitchen anchors the open layout with granite countertops, bespoke cabinetry, and premium appliances, including a professional gas range, dual wine refrigerators, and a warming drawer—ideal for both casual dining and elegant entertaining.

Elevated Living with City and Mountain Views

Step out onto the private balcony or ascend to the 500-square-foot rooftop deck, where panoramic views of the city skyline and Rocky Mountains stretch endlessly before you. With a built-in dumbwaiter to effortlessly deliver dinner or drinks from below, this space invites al fresco dining, sunset gatherings, and starlit celebrations—all from the privacy of your own rooftop oasis.

The spa-inspired bathroom transforms daily routines into rejuvenating rituals, featuring dual rainfall showerheads, body jets, and sleek modern design. Every detail, from the lighting to the layout, has been carefully curated to balance elegance and ease.

Inspired Workspaces with Limitless Potential

Below the residence, a 1,560-square-foot modern flex-space offers unmatched versatility. With independent HVAC systems, separate electric meters, and secure entrances, each level can function autonomously—perfect for an art studio, creative office, gallery, or rentable unit.

Situated in Denver’s vibrant Santa Fe Arts District, the property places you directly in the heart of one of the city’s most dynamic cultural destinations. On the first Friday of every month, the street comes alive with art, music, and community during the iconic First Friday Art Walk—a celebration you can enjoy right from your window or by joining the crowd just outside your door.

Additional Highlights

  • Two covered parking spaces

  • Additional storage

  • No HOA

  • Rooftop deck with city and mountain views

  • Separate utilities and entrances for live/work flexibility

A Creative Sanctuary Meets Entertainer’s Dream

919 Santa Fe Drive is more than a home—it’s a lifestyle statement for the modern creator, visionary entrepreneur, or anyone seeking a harmonious blend of inspiration and sophistication. Move into the beating heart of Denver’s arts scene and make this architectural masterpiece your personal canvas.

919 Santa Fe Drive, Denver, CO 80204

Listed by David Williams | The Denver Group | Compass
Offered at $1,750,000
Total Space: Over 5,000 SQFT | Residential Area: 1,928 SQFT | Flex/Work Space: 1,560 SQFT | Rooftop Deck: 500 SQFT

Visit the property website HERE

See more listings HERE

🖤When you think of real estate, think of The Denver Group🖤

 

Follow Us On Instagram