Browse Homes

Leave a Message

Thank you for your message. We will be in touch with you shortly.

Browse Homes

Property Description

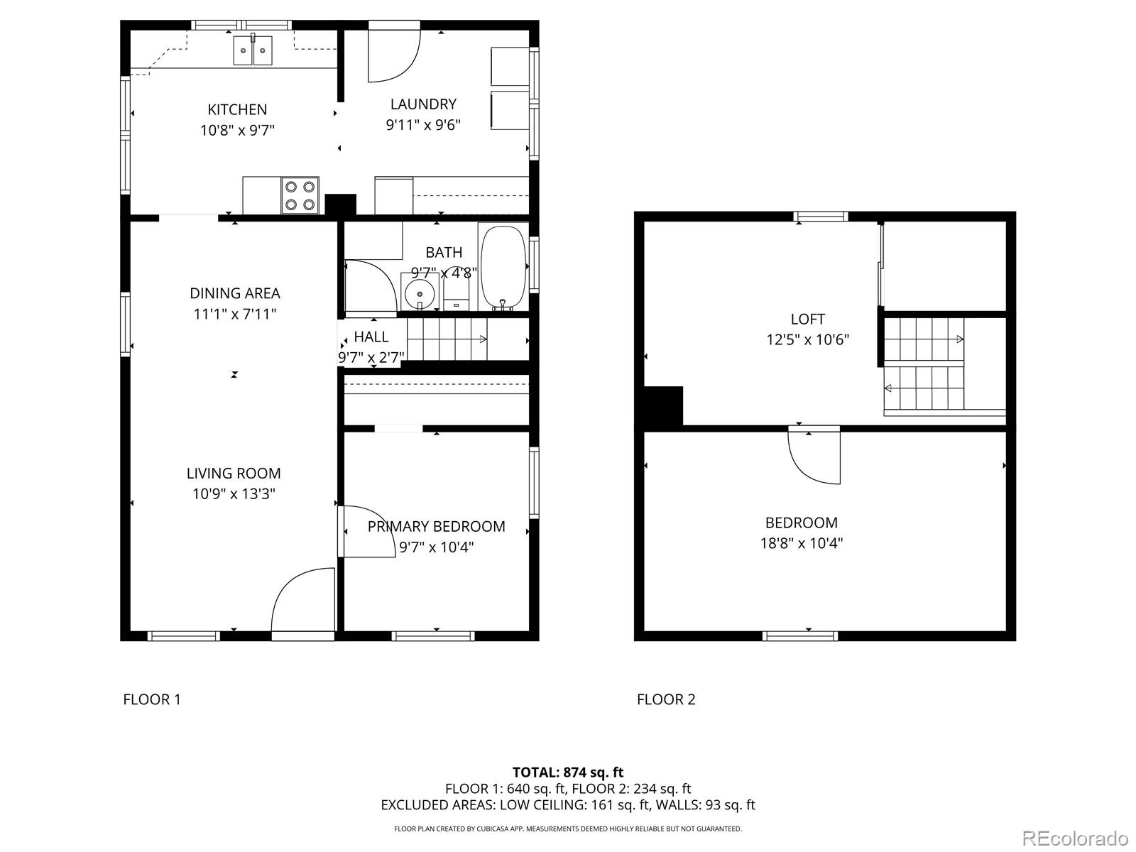
Discover a versatile and charming home at 3333 W Center Ave, offering both comfortable everyday living and compelling long-term value. This 2-bedroom, 1-bath residence features a spacious main-level living area and an additional second-floor loft, creating flexible space for a home office, guest room, creative studio, or extra living area. The home has a cute, welcoming character and a practical layout that feels cozy yet functional--ideal for buyers seeking a simple, well-scaled home with room to personalize.

One of the standout features is the exceptionally large 6,650 sq ft lot, which provides a rare sense of openness and privacy for the area. The expansive yard is perfect for gardening, entertaining, pets, or simply enjoying outdoor living, while also offering future potential for expansion or additional improvements.

From an investment perspective, the property generates $30,600 in gross annual income with low operating expenses of $7,452 and benefits from a reliable $2,550/month voucher tenant, delivering immediate and consistent cash flow. The lot size and compatible zoning further support value-add opportunities such as building an ADU or additional structures, enhancing long-term returns.

Located in a strengthening West Denver submarket, this property offers a rare combination of livable charm, outdoor space, and financial performance. Whether you're looking for a modest, comfortable home to live in today or a turnkey investment with built-in income and future upside, 3333 W Center Ave delivers flexibility, stability, and opportunity in one appealing package.

Overview

Property Status
For Sale
Lot Size
6,650 Sq.Ft.
MLS ID
6345181
Property Type
Residential
Year Built
1938

Features & Amenities

Total Area
1,116 Sq.Ft.
Stories
2
Water Source
Public
Roof
Composition
Lot Features
Level
Parking
Unpaved, Gravel
Heat Type
Forced Air
Air Conditioning
None
Sewer
Public Sewer
Elementary School
Munroe
Middle School
Strive Federal
High School
KIPP Denver Collegiate High School
School District
Denver 1
Sales Price
$398,000
Real Estate Tax
$1,889/yr
Zoning
E-SU-D1X

Downloads

3333 W Center Avenue

Schedule a Tour

We would love to help you see this beautiful home! As a full-service brokerage, we can help you tour. Please submit an offer, and answer questions about the buying process.

Enter a valid email

Thank you

for your interest in 3333 W Center Avenue, Denver, CO 80219

back to page
3333 W Center Avenue
Navigate

Mortgage Calculator

Estimate your monthly mortgage payment, including the principal and interest, property taxes, and HOA. Adjust the values to generate a more accurate rate.
$0,000 Your Payment 20 15 65
$0,000 Your Payment

3333 W Center Avenue

Follow Us On Instagram