Browse Homes

Leave a Message

Thank you for your message. We will be in touch with you shortly.

Browse Homes

Property Description

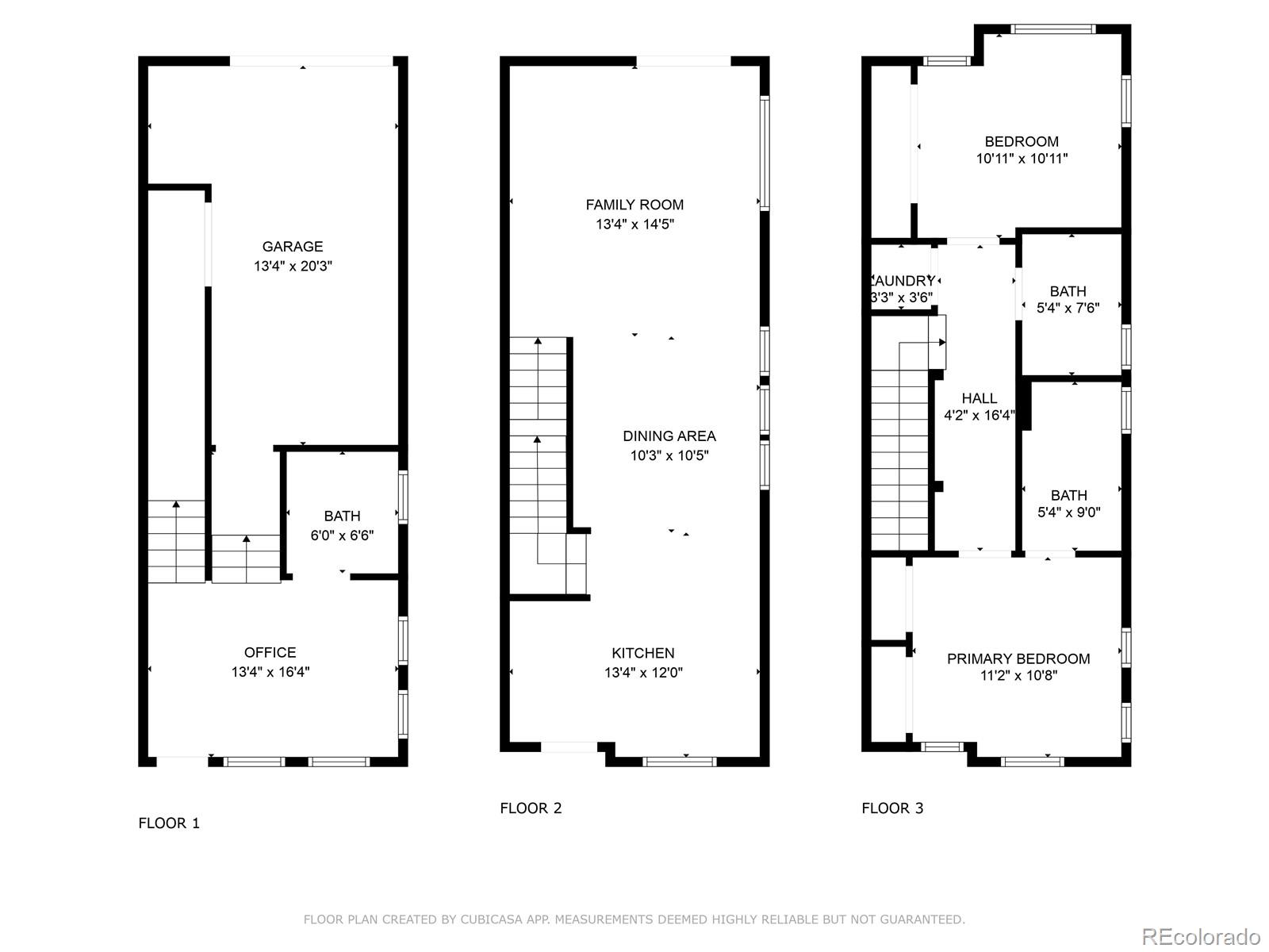
Welcome to this brand-new luxury townhome offering the best of Denver living with stunning views of Sloan's Lake, the Rocky Mountains, and the vibrant downtown skyline. Thoughtfully designed across three levels, this home blends modern style with functional spaces, creating the ideal balance for both entertaining and everyday life. The main level opens with a versatile office accented by luxury vinyl flooring and recessed lighting--perfect for working from home or as a creative flex space--paired with a stylish powder bath for convenience. Upstairs, the second level serves as the heart of the home with an open-concept design where the family room and dining area flow seamlessly into the gourmet kitchen. The kitchen features quartz countertops, stainless steel Samsung appliances, a striking tile backsplash, and soft-close cabinetry, all illuminated by recessed lighting for a clean and inviting atmosphere. On the third level, the private primary suite offers a calming retreat with dual closets, recessed lighting, and a spa-inspired en suite bathroom complete with light gray soft-close cabinetry, quartz countertops, black accents, and a beautifully tiled walk-in shower. A secondary bedroom with an oversized closet also enjoys its own full en suite bath with a tub and quartz-topped vanity, making it the perfect guest suite or secondary living space. A conveniently located laundry area completes this floor, designed to maximize function without sacrificing style. Just steps from Sloan's Lake, trails, and green spaces, and minutes from Denver's best dining, shopping, and nightlife, this townhome blends modern luxury with a lifestyle that is truly unmatched. WELCOME HOME!

Overview

Property Status
Sold
Lot Size
1,270 Sq.Ft.
MLS ID
9840036
Property Type
Townhouse
Year Built
2024

Features & Amenities

Total Area
1,405 Sq.Ft.
Neighborhood
Sloan's Lake
Architecture Styles
Contemporary
View Description
City, Mountain(s), Water
Stories
3
Garage Spaces
1.0
Water Source
Public
Utilites
Cable Available, Electricity Available, Electricity Connected, Phone Available
Roof
Membrane
Parking
Concrete, Dry Walled, Finished Garage, Storage
Heat Type
Forced Air
Air Conditioning
Central Air
Laundry Room
In Unit
Appliances
Cooktop, Dishwasher, Disposal, Microwave, Oven, Refrigerator, Self Cleaning Oven
Other Interior Features
Ceiling Fan(s), Entrance Foyer, Open Floorplan, Primary Suite, Quartz Counters, Smoke Free
Sewer
Public Sewer
Substructure
Concrete Perimeter
Security Features
Carbon Monoxide Detector(s)
Other Exterior Features
Lighting, Rain Gutters
Elementary School
Edison
Middle School
Strive Sunnyside
High School
North
School District
Denver 1
Sales Price
$565,000
Real Estate Tax
$2,260/yr

Downloads

5128 W 26th Avenue Unit: 209

Schedule a Tour

We would love to help you see this beautiful home! As a full-service brokerage, we can help you tour. Please submit an offer, and answer questions about the buying process.

Thank you

for your interest in 5128 W 26th Avenue Unit: 209, Denver, CO 80212

Property Description

Welcome to this brand-new luxury townhome offering the best of Denver living with stunning views of Sloan's Lake, the Rocky Mountains, and the vibrant downtown skyline. Thoughtfully designed across three levels, this home blends modern style with functional spaces, creating the ideal balance for both entertaining and everyday life. The main level opens with a versatile office accented by luxury vinyl flooring and recessed lighting--perfect for working from home or as a creative flex space--paired with a stylish powder bath for convenience. Upstairs, the second level serves as the heart of the home with an open-concept design where the family room and dining area flow seamlessly into the gourmet kitchen. The kitchen features quartz countertops, stainless steel Samsung appliances, a striking tile backsplash, and soft-close cabinetry, all illuminated by recessed lighting for a clean and inviting atmosphere. On the third level, the private primary suite offers a calming retreat with dual closets, recessed lighting, and a spa-inspired en suite bathroom complete with light gray soft-close cabinetry, quartz countertops, black accents, and a beautifully tiled walk-in shower. A secondary bedroom with an oversized closet also enjoys its own full en suite bath with a tub and quartz-topped vanity, making it the perfect guest suite or secondary living space. A conveniently located laundry area completes this floor, designed to maximize function without sacrificing style. Just steps from Sloan's Lake, trails, and green spaces, and minutes from Denver's best dining, shopping, and nightlife, this townhome blends modern luxury with a lifestyle that is truly unmatched. WELCOME HOME!

Overview

Property Status
Sold
Lot Size
1,270 Sq.Ft.
MLS ID
9840036
Property Type
Townhouse
Year Built
2024

Features & Amenities

Total Area
1,405 Sq.Ft.
Neighborhood
Sloan's Lake
Architecture Styles
Contemporary
View Description
City, Mountain(s), Water
Stories
3
Garage Spaces
1.0
Water Source
Public
Utilites
Cable Available, Electricity Available, Electricity Connected, Phone Available
Roof
Membrane
Parking
Concrete, Dry Walled, Finished Garage, Storage
Heat Type
Forced Air
Air Conditioning
Central Air
Laundry Room
In Unit
Appliances
Cooktop, Dishwasher, Disposal, Microwave, Oven, Refrigerator, Self Cleaning Oven
Other Interior Features
Ceiling Fan(s), Entrance Foyer, Open Floorplan, Primary Suite, Quartz Counters, Smoke Free
Sewer
Public Sewer
Substructure
Concrete Perimeter
Security Features
Carbon Monoxide Detector(s)
Other Exterior Features
Lighting, Rain Gutters
Elementary School
Edison
Middle School
Strive Sunnyside
High School
North
School District
Denver 1
Sales Price
$565,000
Real Estate Tax
$2,260/yr

Downloads

5128 W 26th Avenue Unit: 209

Schedule a Tour

We would love to help you see this beautiful home! As a full-service brokerage, we can help you tour. Please submit an offer, and answer questions about the buying process.

Thank you

for your interest in 5128 W 26th Avenue Unit: 209, Denver, CO 80212

5128 W 26th Avenue Unit: 209
Navigate
5128 W 26th Avenue Unit: 209
explore in 3d

5128 W 26th Avenue Unit: 209

or
  • CallStephanie Henric

    License #100071847

    720-656-4297
  • Walking trail and open green space near Sloan’s Lake in the North Sloan’s Lake area of Denver, CO.

    Explore Sloan's Lake

    read more

    Follow Us On Instagram